South African Mutual Life Assurance Building, Vermeulen Street, Pretoria
Loading...
Date
Authors
Eaton, Norman, 1902-1966
Journal Title
Journal ISSN
Volume Title
Publisher
Abstract
Preliminary designs for new South African Mutual Life Assurance Building. Eight storey office highrise building with basement. Includes elevations, perspectives & sections.
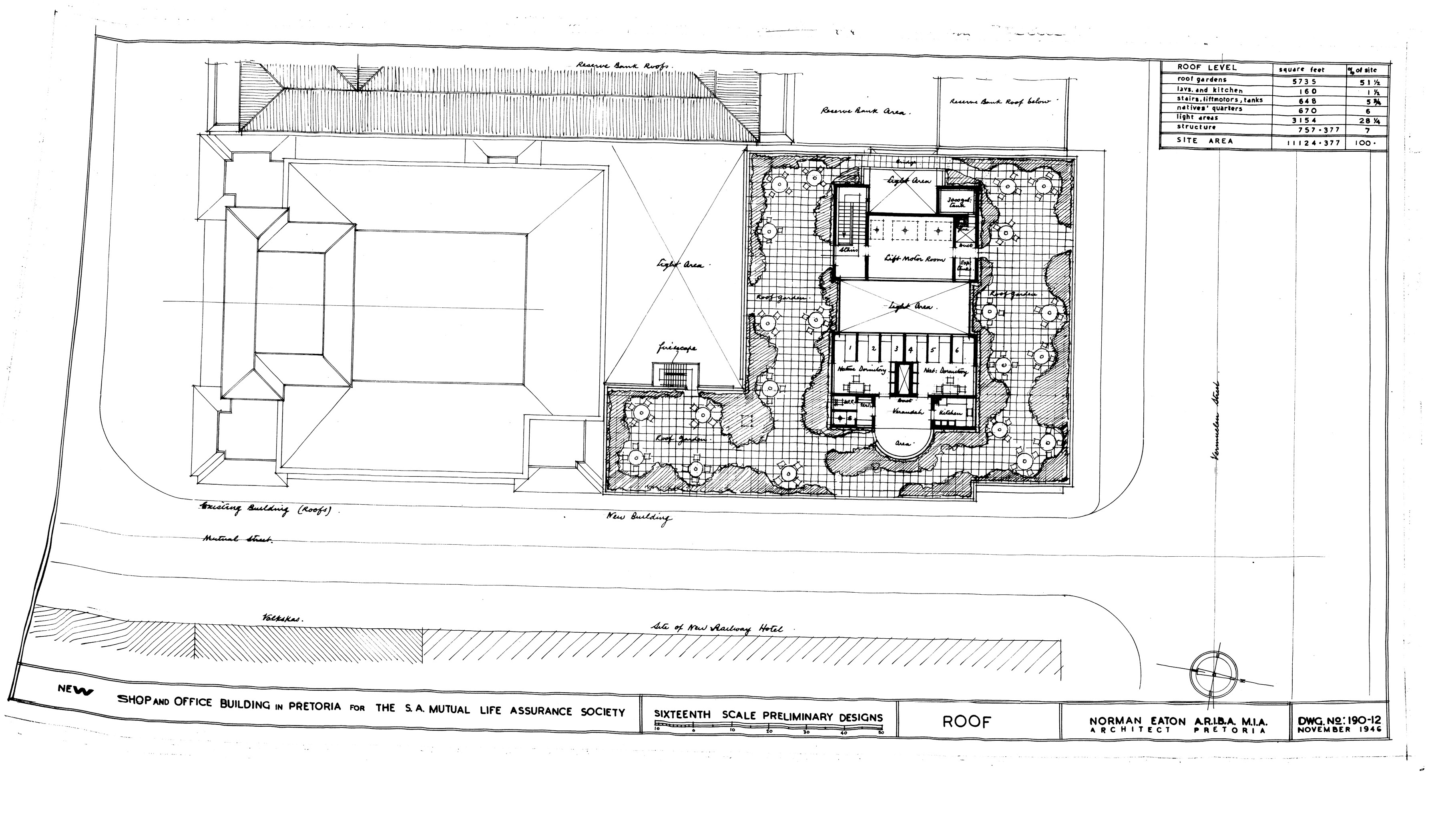
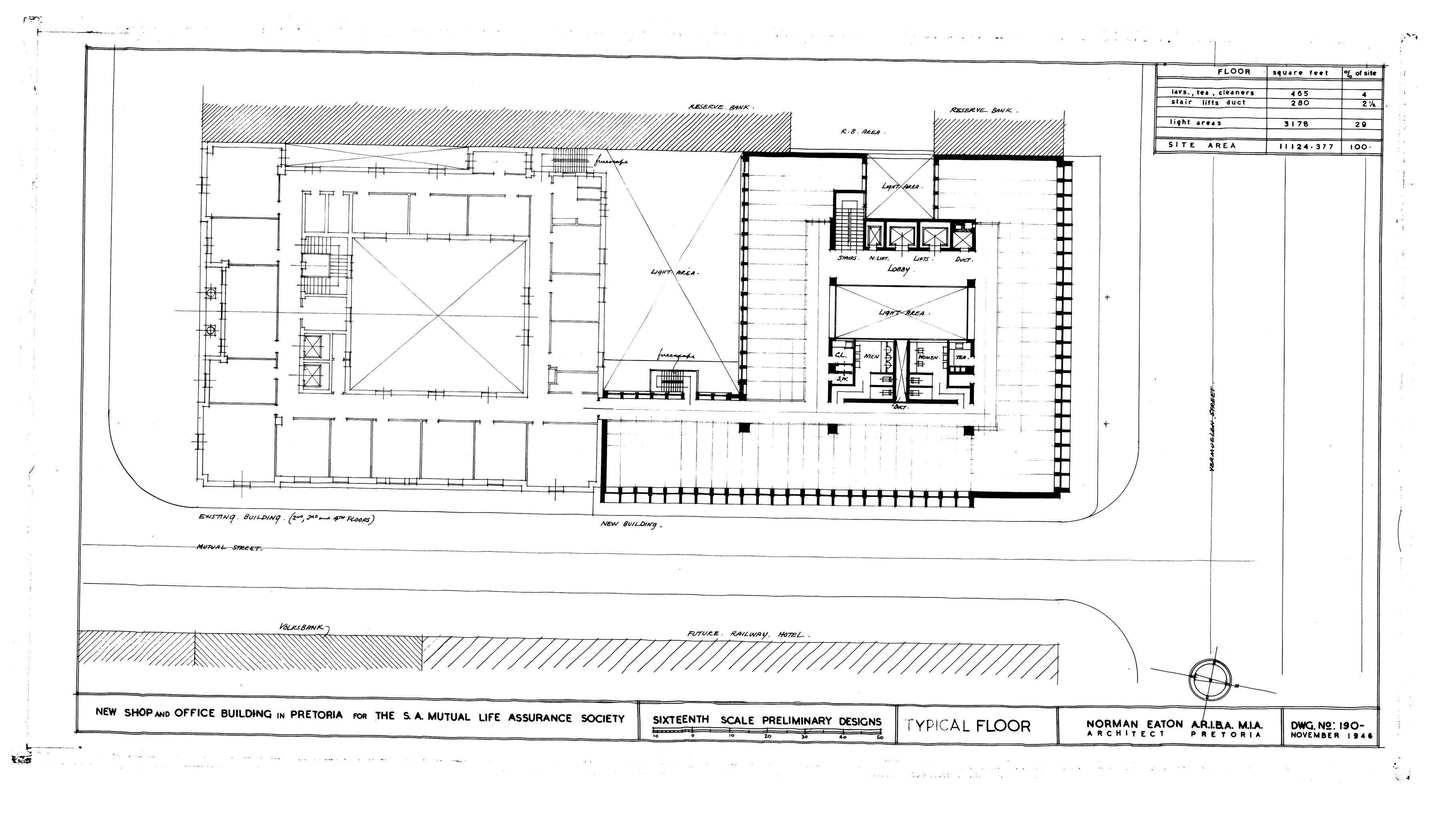
Similar to the aspirations for Eaton's Netherlands Bank proposal, canopies project over the pavement to protect pedestrians from the elements, while the building steps back generously to allow pedestrian movement and trees on the widened sidewalk. The building is split into two distinct wings to optimize northern exposure and cross-ventilation, with horizontal projecting ledges protecting all strip windows. A roof garden draws from Brazilian traits, along with facades similar to the Ministry of Transport (not executed) with fins on a grid (sans brise soleil). Large projecting frames hold the composition of the smaller scaled projecting fins on a grid to address each street separately. The design is parallel to the development of a high-rise vernacular in Johannesburg at the time, based on adaptations from pre-war Corbusier ideas, Martienssen’s projecting frames and set within the post-war Brazilian rhetoric.
Similar to the aspirations for Eaton's Netherlands Bank proposal, canopies project over the pavement to protect pedestrians from the elements, while the building steps back generously to allow pedestrian movement and trees on the widened sidewalk. The building is split into two distinct wings to optimize northern exposure and cross-ventilation, with horizontal projecting ledges protecting all strip windows. A roof garden draws from Brazilian traits, along with facades similar to the Ministry of Transport (not executed) with fins on a grid (sans brise soleil). Large projecting frames hold the composition of the smaller scaled projecting fins on a grid to address each street separately. The design is parallel to the development of a high-rise vernacular in Johannesburg at the time, based on adaptations from pre-war Corbusier ideas, Martienssen’s projecting frames and set within the post-war Brazilian rhetoric.
Description
7 jpg files of digitized designs for new South African Mutual Life Assurance Building in Pretoria.
Keywords
Architectural designs, Architectural drawings, South African Mutual Life Assurance Building
