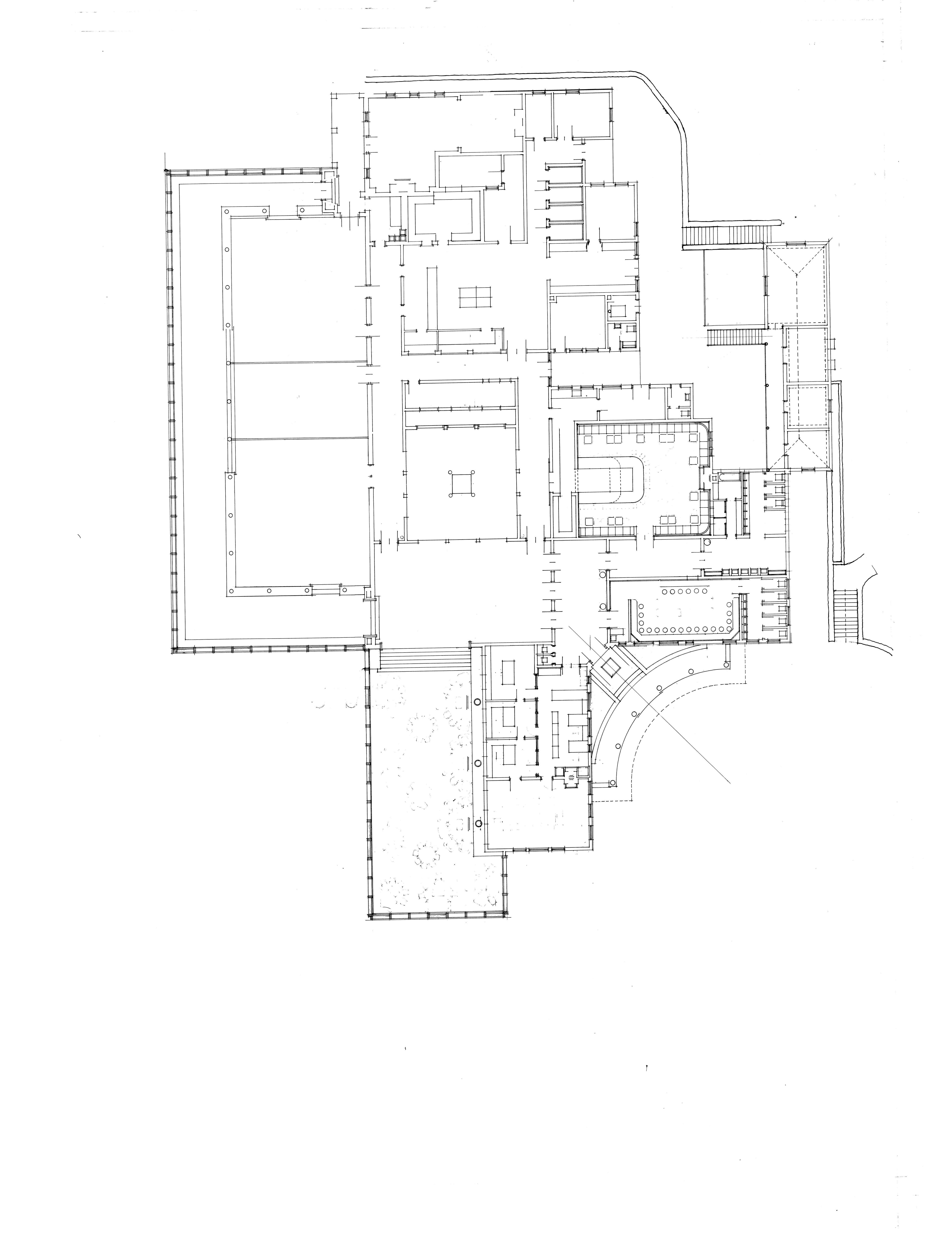
Pretoria Country Club : Lockwood Hall
Loading...
Date
Authors
Eaton, Norman, 1902-1966
Journal Title
Journal ISSN
Volume Title
Publisher
Abstract
Plans 07544-01s and 07544-03s of the Lockwood Hall, Pretoria Country Club, Waterkloof, Pretoria. The ground floor plan includes the detail of the porte cochere, courtyard, fountain, lounge, dining rooms, bar, card rooms, kitchen and services, verandahs and fireplaces.
Description
600 dpi TIFF scans reduced to 150 dpi JPEG images
Keywords
Architectural designs, Architectural drawings, Lockwood Hall, Pretoria Country Club
